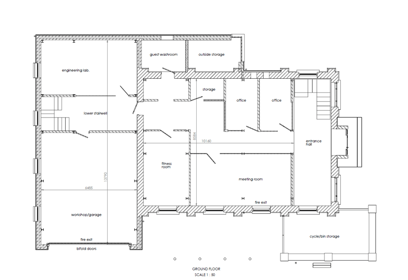
You’ve seen the first floor, now it’s time to have a look at our plans for the ground floor.
Here is a more detailed look at the floor plan ↓

Make sure you visit our blog regularly so you can be kept up to date on all things Chapel!
3form Design – A renovation blog about turning an old abandoned chapel into our new Product Design studio.